Przeglądaj ulubioneD.169 – Projekt domu dodano do ulubionych!
D.188 – Projekt domu
Powierzchnia użytkowa
- Powierzchnia użytkowa79.22 m²
- Dodatkowo:
- Kotłownia4.26 m²
- Powierzchnia zabudowy80.7 m²
- Powierzchnia podłóg107.97 m²
- Kubatura494.00 m³
- Szerokość elewacji frontowej8.00 m
- Wysokość budynku6.73 m
- Minimalne wymiary działki19,94 x 16,00 m
- Ilość kondygnacjiZ poddaszem użytkowym
- Rodzaj dachuDwuspadowy
- Kąt nachylenia dachu25°
Technologia i konstrukcja
- Konstrukcja murowana
- Strop: żelbetowy
- Dach: dwuspadowy
- Pokrycie dachu: blachodachówka
- Ocieplenie poddasza: wełna mineralna gr. 25 cm
- Tynk: mineralny
- Ocieplenie ścian: Wełna mineralna 20cm
Energooszczędność
Projekt zgodny z aktualnymi WT 2021
- Ogrzewanie na paliwa stałe lub instalacja gazowa w projekcie
- Możliwa instalacja pompy ciepła
- Rzut parteru
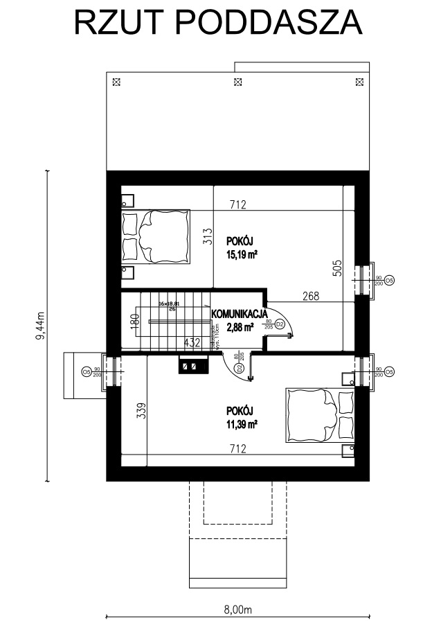
- Rzut poddasza
Zgodnie z obowiązującym stanem prawnym w pomieszczeniach na poddaszu (tj. ze skosami) pod skosami dachu do powierzchni użytkowej uwzględniono powierzchnię wg następujących zasad:
– w miejscach gdzie wysokość pomieszczenia ma powyżej 2,2m powierzchnia jest liczona w 100%,
– pomiędzy 1,4m a 2,2m wysokości pomieszczeń – powierzchnia jest liczona w 50%,
– poniżej 1,4 m wysokości pomieszczeń – powierzchnia nie jest brana pod uwagę. - Minimalne wymiary działki
2890,00 zł
Szacunkowy koszt budowy
Stan surowy zamknięty
- 182 206,00 zł
- 79.22 m²
- 3
- 1
- 0
Dostępny od ręki
Dostępny od ręki
- Wysyłka w 2-7 dni robocze
- Darmowa wysyłka
- Wymiana do 30 dni, zwrot do 14 dni




































































